


CREA - C21 Brokers / Century 21 Heritage House Ltd. Brokerage / Franco Castellucci Lot 6 (12) Darrow Drive Tillsonburg, ON N4G 1C4
X12997246
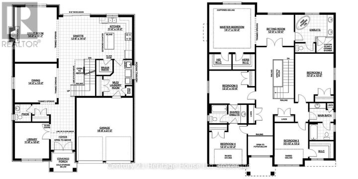
Single-Family Home
Oxford County
Listed By
CREA - C21 Brokers
Last checked Apr 16 2026 at 7:15 PM EDT
- Full Bathrooms: 3
- Partial Bathroom: 1
- Foundation: Poured Concrete
- Forced Air
- Natural Gas
- Air Exchanger
- Central Air Conditioning
- Full
- Brick
- Stucco
- Sewer: Sanitary Sewer
- Total: 4
- Garage
- Attached Garage
- 2

Description